home iii aggregations
fourth year elective studio, fall 2020 // prof. byron mouton


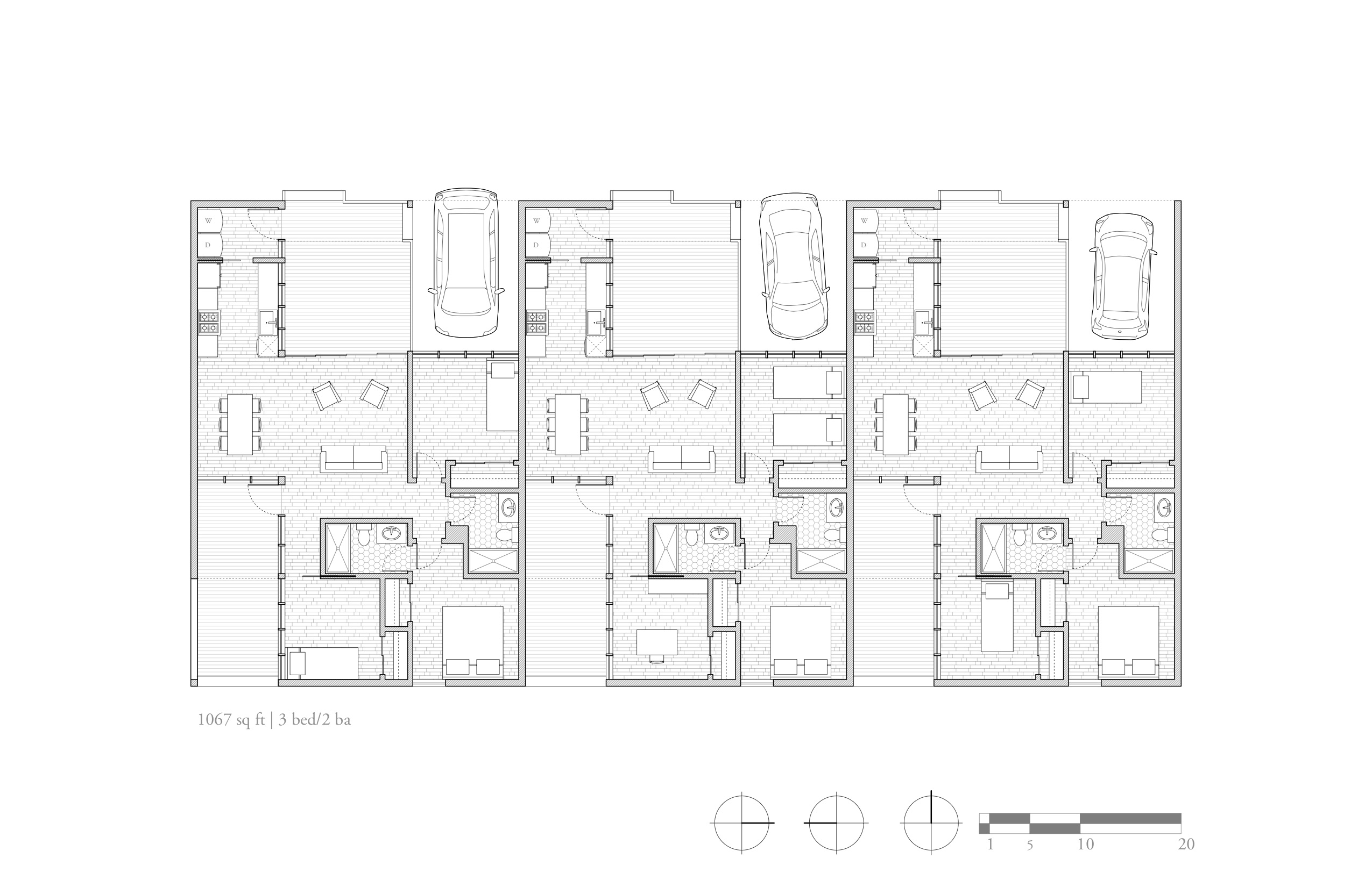
following the single family proposal, students extrapolated on the original design to create proposals for a scalable, multifamily prototype.

designed in partnership with hayley burroughs (m.arch ‘22). all drawings by z. braaten

northern us variation

southern us variation