home i
second year core studio, spring 2019 // prof. Reyes Sánchez

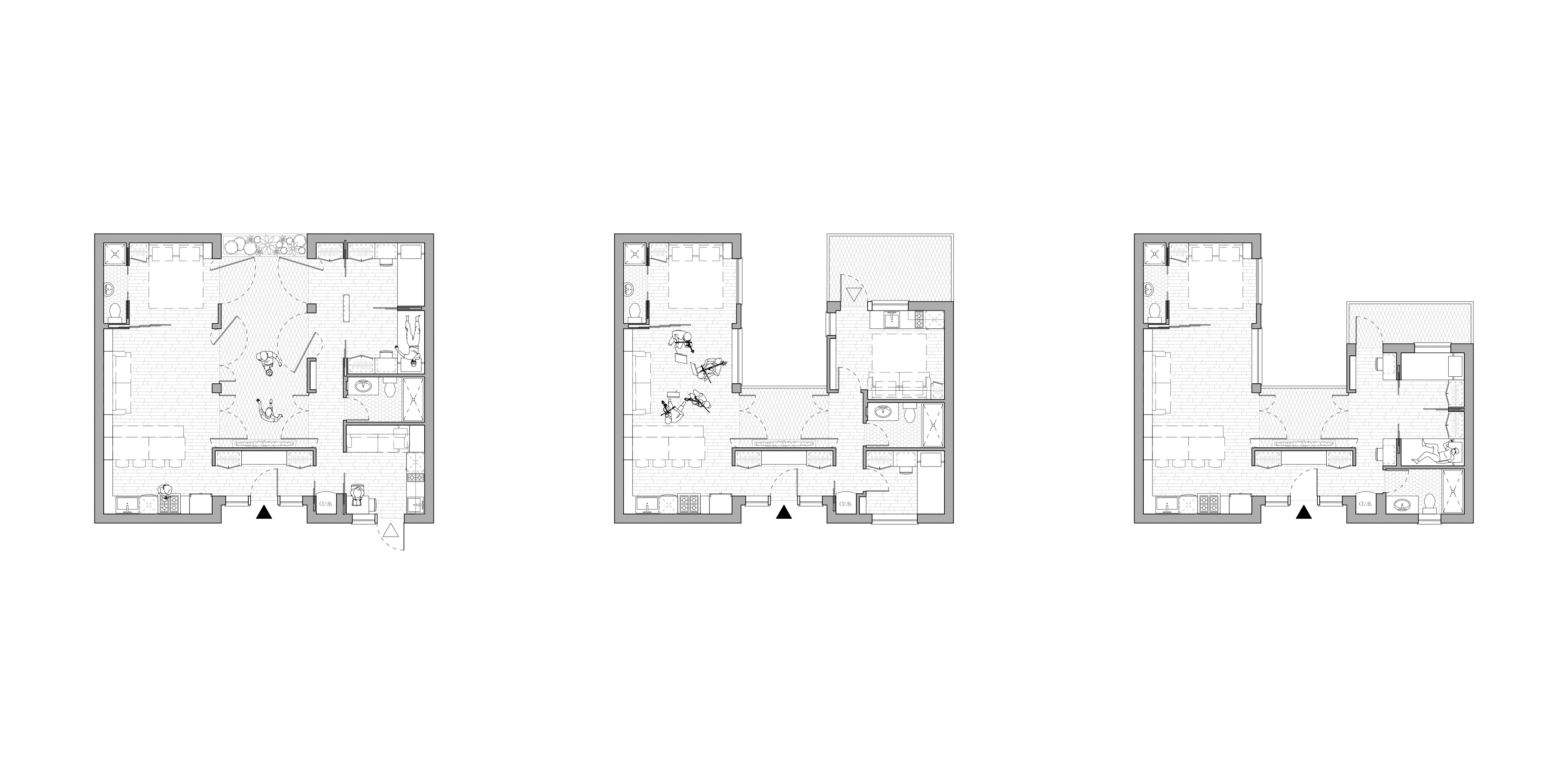
base unit in swampgrove. see also home ii
constraints: 900 ft2 indoors. 300 ft2 outdoors. must sleep five. includes efficiency dwelling unit. 

section perspective. selected for spring 2020 nomas tulane exhibition.


floor plan variations (by level)

additional drawings